Квартира с 1 спальней в Дубай Хилс Эстейт, Дубай, ОАЭ №292
3 672 888 AED
24 486 AED/m²
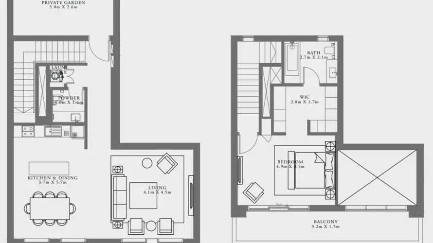
1
Спален
2
Ванных
150
Жилая площадь, м²
на карте
Особенности
- Система "Умный Дом"
- Балкон
- Кухонная техника
- Встроенная кухонная техника
