Apartamento de 1 dormitorio en Dubai Hills Estate, UAE No. 292
3 672 888 AED
24 486 AED/m²
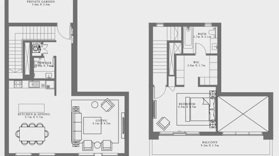
1
Dormitorios
2
Baños
150
Superficie habitable, m²
en el mapa
Características
- Sistema de hogar inteligente
- Balcón
- Electrodomésticos de cocina
- Electrodomésticos de cocina empotrados
