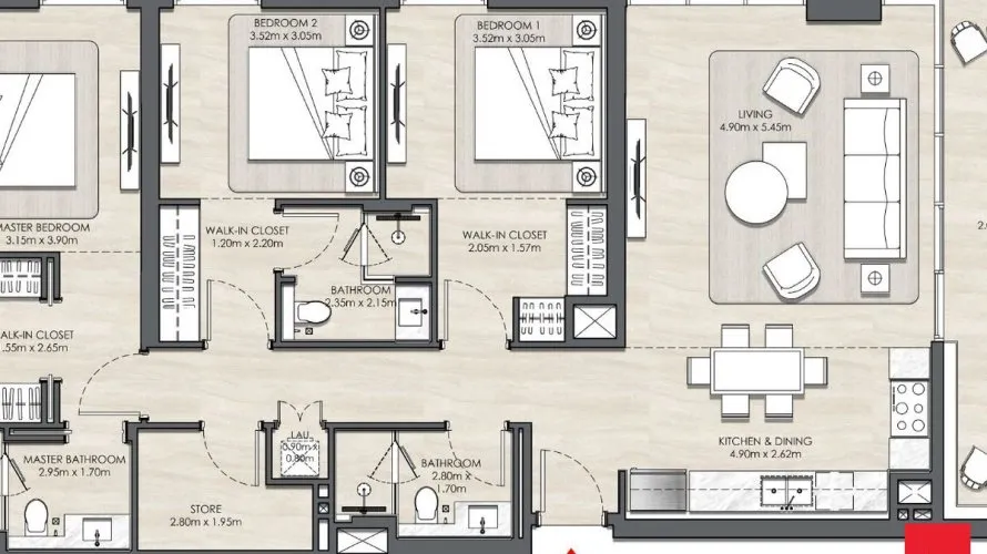
Квартира с 3 спальнями в Дубай Хилс Эстейт, Дубай, ОАЭ №1049
4 622 888 AED
29 749 AED/m²
3
Спален
3
Ванных
155.4
Жилая площадь, м²
на карте
Особенности
- Вид на достопримечательности
- Балкон
