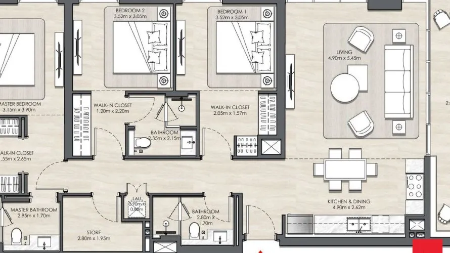
Apartamento de 3 dormitorios en Dubai Hills Estate, UAE No. 1049
4 622 888 AED
29 749 AED/m²
3
Dormitorios
3
Baños
155.4
Superficie habitable, m²
en el mapa
Características
- Vista a monumento
- Balcón
