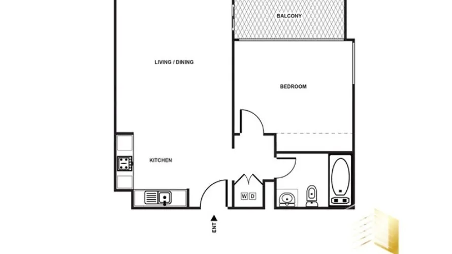
Appartement de 1 chambre à Park Point, UAE No. 216
1 295 000 AED
20 232 AED/m²
1
Chambres
1
Salles de bain
64.01
Surface habitable, m²
sur la carte
Caractéristiques
- Climatisation centrale
