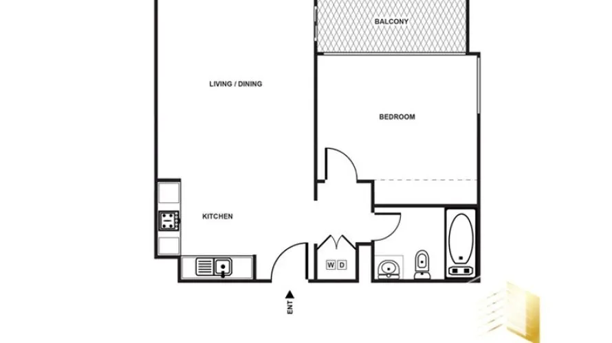
Apartamento de 1 dormitorio en Park Point, UAE No. 216
1 295 000 AED
20 232 AED/m²
1
Dormitorios
1
Baños
64.01
Superficie habitable, m²
en el mapa
Características
- Aire acondicionado central
