Lime Garden is ideally situated in the heart of a thriving and well-balanced community, with every amenity within reach. The elegantly crafted residential tower embodies comfort, convenience, and connectivity amidst the tranquilly of nature and mere minutes from the hubbub of the city’s landmarks.
A suburban paradise, Lime Gardens is your stop for luxurious apartments, built on the union of elegance and nature, where a vibrant community is at the centre of it all. From a wide variety of leisurely and recreational activities to a vast amount of retail, dining, entertainment options, and world-class health and educational facilitiesA city within a city – Dubai Hills Estate comprises elegantly planned neighbourhoods of contemporary apartment buildings and villa compounds in a country-village setting. Dubai Hills Estate – the green heart of Dubai – is a first of its kind destination. This masterfully planned, multi-purpose development forms an integral part of the Mohammed Bin Rashid City. Strategically situated between Downtown Dubai and Dubai Marina, flanked by Al Khail Road, the community offers easy access to the city’s most popular districts and attractions.
Dubai Hills Estate is a prestigious and vibrant master-planned community located in the heart of Dubai, United Arab Emirates. Developed by Emaar Properties in collaboration with Meraas Holding, it represents a harmonious blend of luxury living, natural beauty, and modern urban design.
At the heart of Dubai Hills Estate is the stunning 18-hole championship golf course, designed to international standards. The golf course adds a touch of greenery and serenity to the landscape, attracting golf enthusiasts from around the world.
Dubai Hills Estate is not just a residential development; it’s a comprehensive lifestyle destination.
The Dubai Hills Mall, a world-class shopping and entertainment center, offers an array of retail, dining, and entertainment options. Residents and visitors can also enjoy the Central Park, a vast expanse of greenery and relaxation.
One of the remarkable features of Dubai Hills Estate is its emphasis on sustainability and eco-friendly design. The community incorporates modern infrastructure, smart technologies, and sustainable practices to create an environmentally responsible living environment
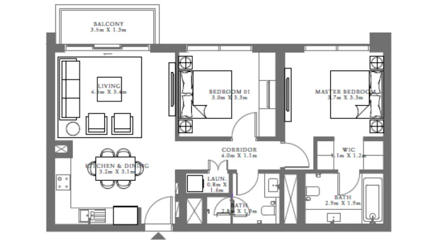
1 bedroom apartment for sale , Dubai Hills Estate, Dubai, UAE No. 1200
3 700 000 AED
0/m²
1
Bedrooms
on map
