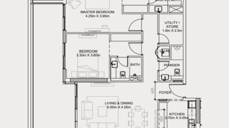
Apartamento de 2 dormitorios en Dubai Hills Estate, UAE No. 305
3 350 000 AED
24 015 AED/m²
2
Dormitorios
3
Baños
139.5
Superficie habitable, m²
en el mapa
Características
- En piso alto
- Balcón
- Electrodomésticos de cocina
- Electrodomésticos de cocina empotrados
